Skip to content

Pdf Free Printable Contractor Bid Forms

  • by

When it comes to bidding on a construction project, having a well-documented and professional bid form is essential. This is where PDF free printable contractor bid forms come in handy. These forms are designed to help contractors submit their bids in a clear and organized manner, making it easier for clients to compare and evaluate different proposals.

With PDF free printable contractor bid forms, contractors can easily fill in the necessary information such as project details, materials and labor costs, terms and conditions, and more. This not only saves time and effort but also ensures that all the important details are included in the bid.

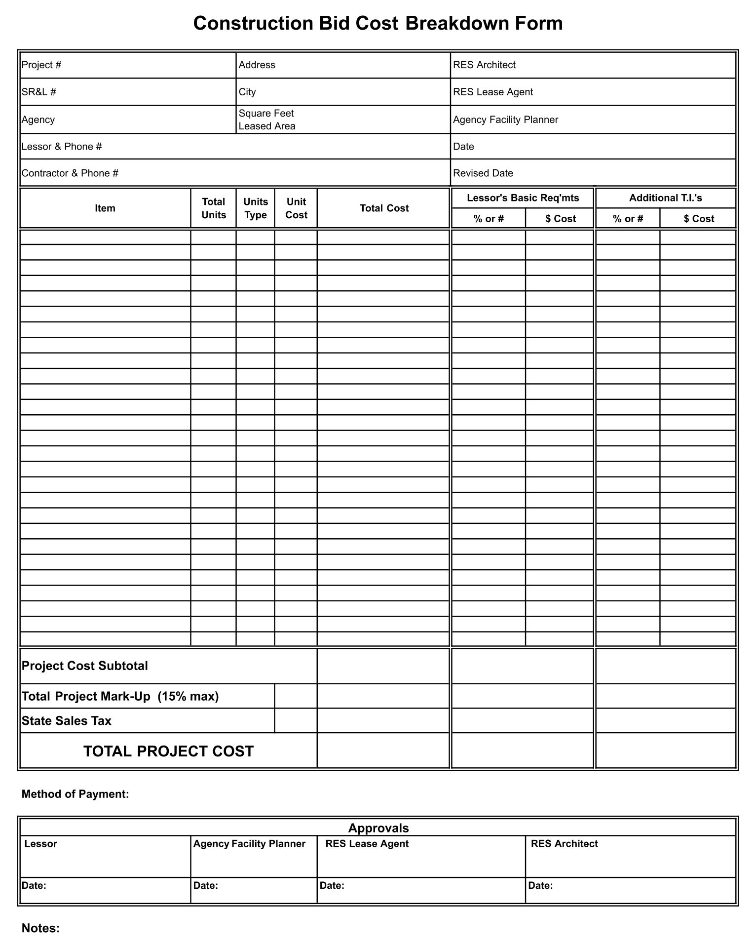
Construction Bid Proposal Template Style 1 Use It And Win Your Bids Pdf Free Printable Contractor Bid Forms

Using these forms can also help contractors present a more professional image to potential clients. A well-prepared and organized bid form can give clients confidence in the contractor’s ability to complete the project successfully and within budget.

In addition, PDF free printable contractor bid forms can be customized to suit the specific needs of each project. Contractors can easily add or remove sections, change the layout, and include their company logo and contact information. This flexibility allows contractors to create bids that are tailored to each client and project.

Overall, PDF free printable contractor bid forms are a valuable tool for contractors looking to win more projects and streamline their bidding process. By using these forms, contractors can present their bids in a professional and organized manner, increasing their chances of securing new business opportunities.

So, if you’re a contractor looking to improve your bidding process and stand out from the competition, consider using PDF free printable contractor bid forms. With these forms, you can create professional and customized bids that impress clients and help you win more projects.


Get and Print Pdf Free Printable Contractor Bid Forms

Printable payroll are ideal for businesses that prefer non-digital systems or need hard copies for employee records. Most forms include fields for staff name, pay period, gross pay, taxes, and net pay—making them both detailed and easy to use.

Begin streamlining your payment tracking today with a trusted payroll printable. Save time, reduce errors, and maintain clear records—all while keeping your payroll records professional.

Free Bid Sheet Templates Editable And PrintableFree Bid Sheet Templates Editable And Printable

Construction Proposal Bid Template Style 2Construction Proposal Bid Template Style 2

Bid Proposal Templates 10 Free PDF Printables PrintableeBid Proposal Templates 10 Free PDF Printables Printablee

Bid Contruction Proposal Templates PRINTABLE FORM 8 5 By 11 Letter Document EtsyBid Contruction Proposal Templates PRINTABLE FORM 8 5 By 11 Letter Document Etsy

Free Bid Sheet Templates Editable And PrintableFree Bid Sheet Templates Editable And Printable

Processing employee payments doesn’t have to be complicated. A payroll template offers a fast, reliable, and straightforward method for tracking wages, work time, and taxes—without the need for digital systems.

Whether you’re a freelancer, administrator, or independent contractor, using aprintable payroll form helps ensure accurate record-keeping. Simply access the template, print it, and fill it out by hand or edit it digitally before printing.